facebook

davidecarelli@dca-studio.it

logo

Different Concept Architect

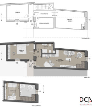
Appartamento con soppalco

2014

PROJECTS

Ristrutturazione di un vecchio edificio in corte, trasformato in appartamento giovane ed economico. Realizzazione di un soppalco abitabile che aumenta la superficie interna, grazie alle finestre realizzate in copertura lo spazio si riempie di luce naturale.

Apartment with mezzanine

2014

Renovation of an old building in court, turned into a young and cheap apartment. Realization of a living room loft that increases the interior surface, thanks to the windows made in covering the space is filled with natural light.


facebook

davidecarelli@dca-studio.it