facebook

davidecarelli@dca-studio.it

logo

Different Concept Architect

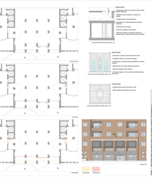
Ingresso torre Milano Naviglio

2015/16

PROJECTS

Progetto preliminare di riqualificazione ingresso condominiale

Preliminary draft redevelopment condominium entrance


facebook

davidecarelli@dca-studio.it